- Ti trovi in:
- Home ›
- Immobili ›
- Montelupo Fiorentino ›
- Affitto ›
- Fondo Commerciale ›
- Fondo Commerciale in affitto a Montelupo Fiorentino
Cod. CC7004
€ 500
Classe energetica: Non specificato
Nuovo
Fondo Commerciale in affitto a Montelupo Fiorentino
Samminiatello
Descrizione
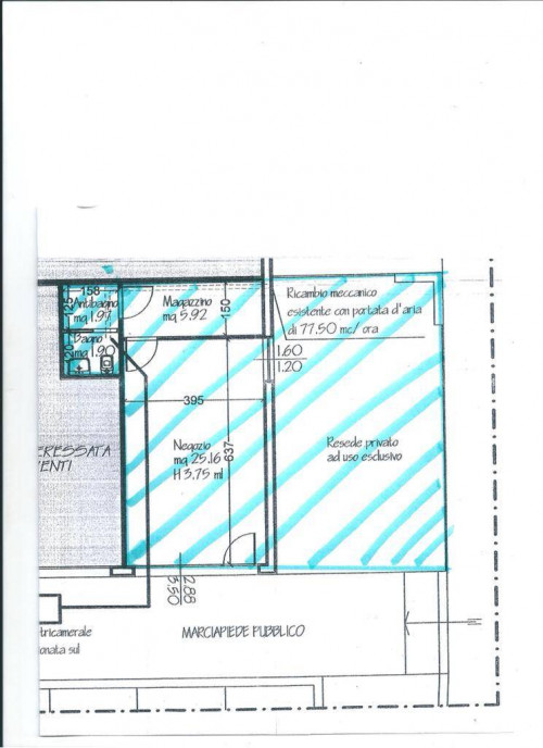
RIFERIMENTO IMMOBILE CC7004
Affittasi a Montelupo, in zona residenziale pochi passi dall'entrata della strada a grande comunicazione FI PI LI Fondo Commerciale C1 di circa 35 mq con vetrina su strada principale.
L'immobile situato a piano terra si compone da unico vano , oltre a bagno , antibagno, ripostiglio,e resede esclusivo di circa 25 mq con posto mezzi privato.
Possibilità di istallazione canna fumaria.
Per maggiori informazioni o per prenotare una visita all'immobile contattare l'agenzia al numero di telefono 0571/700080 o visitare il sito www.affittapresto.it
Caratteristiche
Scopri le caratteristiche di questo immobile
Nelle vicinanze
Servizi e infrastrutture della zona
Contattaci

Alcuni immobili che potrebbero interessarti
Novità
Montelupo Fiorentino
€ 500
Fondo Commerciale in affitto a Montelupo Fiorentino
Cod. CC6489
Affittasi fondo commerciale a Montelupo Fiorentino zona centrale. Il Fondo commerciale è composto da un unico vano con bagno e antibagno,...
Dettagli
Novità
Montelupo Fiorentino
€ 350
Fondo Commerciale in affitto a Montelupo Fiorentino
Cod. CC6354
RIF. IMM .: CC6354- AFFITTASI A MONTELUPO FIORENTINO IN CENTRO MA NON ZTL FONDO COMMERCIALE A PIANO TERRA.IL NEGOZIO DI CIRCA MQ 20,00...
Dettagli
Novità
Montelupo Fiorentino
€ 500
Fondo Commerciale in affitto a Montelupo Fiorentino
Cod. CC1529
RIF.CC1529 Affittasi fondo commerciale a Montelupo fiorentino, zona centralissima. L'immobile è composto da un locale con piccolo...
Dettagli
Novità
Montelupo Fiorentino
€ 600
Fondo Commerciale in affitto a Montelupo Fiorentino
Cod. CC6788
RIF. IMM.: CC 6788 - Affittasi fondo commerciale di mq. 50 a Montelupo Fiorentino zona centrale. Fondo commerciale di mq. 50 posto...
Dettagli
Ultimo aggiornamento 13/06/2022